会員登録物件
周辺にある相場が近い物件
もっと見る
町田市の人気物件
もっと見る
販売中の物件
もっと見る
PR近隣の販売中物件
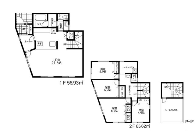
物件概要
「東急田園都市線「つくし野」中古戸建」のここがイチオシ。家から228mのところに、薬や日用品を買うのに便利なさくらんぼ薬局があります。こちらの物件は築5年以内です。中古の戸建て物件のご紹介です。東急田園都市線つくし野駅近くは過ごしやすく快適な住環境です。一戸建ての購入を検討されているなら、まずはお気軽にご連絡からお待ちしております。
物件概要
| 物件名 | 東急田園都市線「つくし野」中古戸建 | ||
|---|---|---|---|
| 所在地 | 東京都町田市小川1丁目 | ||
| 交通 | |||
| 価格 | - | 築年月(築年数) | 2022年 5月( 築3年 ) |
| 建物面積/坪数 | - - |
土地面積/坪数 | - - |
| 種別/構造 | 中古一戸建 / 木造 | 地目 | 宅地 |
| 備考 | ぜひ一度見ていただきたい、「東急田園都市線「つくし野」中古戸建」です。薬や日用品を買うのに便利なさくらんぼ薬局まで、228mです。こちらの中古戸建て物件は、子育ての環境としてもうってつけです。こちらの物件は築5年以内です。不動産をお探しの方はいませんか。当社ではあなたの頼れる不動産探しのパートナーになれるよう、不動産情報を豊富に取り扱っております。ぜひご検討ください。 | ||
※地図上に表示される物件の位置は付近住所に所在することを表すものであり、実際の物件所在地とは異なる場合がございます。
LIFE HOME 個別相談会(無料)
今は買い時?売り時?
新築と中古どっちがいいの?

