部屋別の参考相場価格
| 号室 | 参考相場価格 | 妥当な価格 | 新築時価格 | 専有面積 |
|---|---|---|---|---|
| A棟 | - | - | - |
※表示価格は弊社独自の参考相場価格であり、実際の価格とは異なります。
※この参考相場価格は、販売物件情報ではありません。
会員登録物件
周辺にある相場が近い物件
もっと見る
横浜市鶴見区の人気物件
もっと見る
販売中の物件
もっと見る
PR近隣の販売中物件
物件概要
築2年以内の築浅物件です。前面道路6m以上は確保しているので車の出し入れもラクラクです。初めてのマイホームに新築戸建てはいかがでしょうか。横浜市鶴見区には多種多様な一戸建てがございますので、マイホームの購入をお考えなら、ぜひ当社までご連絡ください。お待ちしております。
物件概要
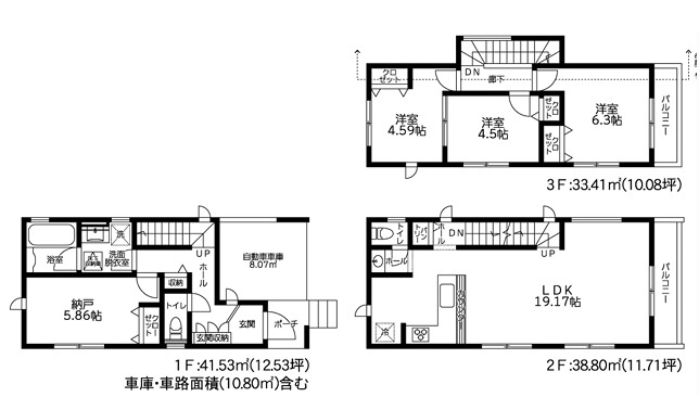
| 物件名 | ~書斎のある新築戸建~2階建て 菊名駅徒歩圏 | ||
|---|---|---|---|
| 所在地 | 神奈川県横浜市鶴見区北寺尾7丁目 | ||
| 交通 | |||
| 価格 | 4,790万円 | 築年月(築年数) | 2023年 6月( 新築 ) |
| 建物面積/坪数 | 98.74㎡ 29.86坪 |
土地面積/坪数 | 84.00㎡ 25.41坪 |
| 種別/構造 | 新築一戸建 / 木造 | 地目 | 宅地 |
| 備考 | 東急東横線「菊名」新築戸建ての詳しい情報。こちらは清潔感のある新築戸建て物件です。前面道路6m以上は確保しているので車の出し入れもラクラクです。築2年以内の築浅物件です。横浜市鶴見区エリアや東急東横線菊名付近でなら、素敵な一戸建てに出会うことができます。まずはお気軽にお問い合せ下さい。 | ||
※地図上に表示される物件の位置は付近住所に所在することを表すものであり、実際の物件所在地とは異なる場合がございます。
LIFE HOME 個別相談会(無料)
今は買い時?売り時?
新築と中古どっちがいいの?

