部屋別の参考相場価格
| 号室 | 参考相場価格 | 妥当な価格 | 新築時価格 | 専有面積 |
|---|---|---|---|---|
| - | - | - | 75.14 |
※表示価格は弊社独自の参考相場価格であり、実際の価格とは異なります。
※この参考相場価格は、販売物件情報ではありません。
会員登録物件
周辺にある相場が近い物件
もっと見る
横浜市都筑区の人気物件
もっと見る
販売中の物件
もっと見る
PR近隣の販売中物件
物件概要
マンションにどんな人が住んでいるのかも中古マンションなら事前に知れます。こちらの物件はエレベーター2基付きです。不動産のことで確認したいことがあるなら、メール又はお電話にてご連絡ください。当社は豊富な経験と知識を持っているので、丁寧にお答えします。
物件概要
| 物件名 | シティテラス横濱仲町台弐番館 | ||
|---|---|---|---|
| 所在地 | 神奈川県横浜市都筑区茅ケ崎南1丁目 | ||
| 交通 | |||
| 価格 | 6,480万円 | 管理費・共益費 | 12,051円 |
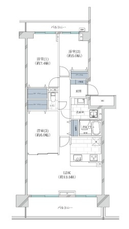
| 専有面積 | 75.14㎡ | 築年月(築年数) | 2017年 10月( 築8年 ) |
| 種別/構造 | 中古マンション / 鉄筋コンクリート | 階建 | 8階建 |
| 備考 | 多くの方に好評な、清潔感のある室内が魅力の中古マンションです。階段の上り下りが不要な、エレベーターが2台付いている物件です。不動産のご購入を検討しているが不動産の知識がなくて不安だと思う方でも、経験豊富な当社スタッフがしっかりとサポートするので安心してご依頼下さい。 | ||
※地図上に表示される物件の位置は付近住所に所在することを表すものであり、実際の物件所在地とは異なる場合がございます。
LIFE HOME 個別相談会(無料)
今は買い時?売り時?
新築と中古どっちがいいの?

