部屋別の参考相場価格
会員登録物件
周辺にある相場が近い物件
もっと見る
川崎市麻生区の人気物件
もっと見る
販売中の物件
もっと見る
PR近隣の販売中物件
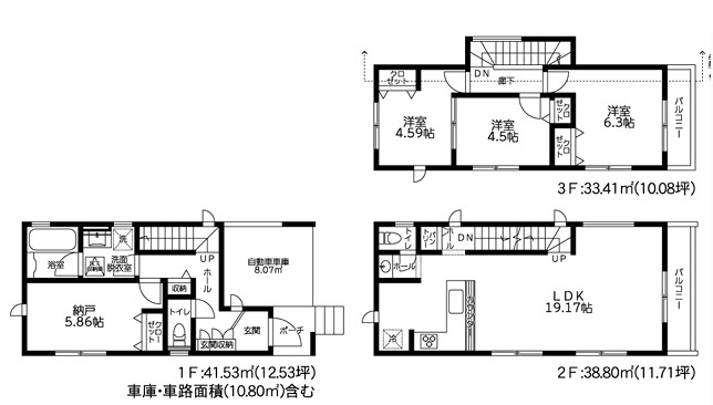
物件概要
こちらの物件はコンビニまでの距離が225mです。こちらは中古一戸建ての物件です。当社では小田急小田原線柿生周辺の不動産情報を豊富に扱っておりますので、まずはお気軽にご連絡ください。お客様のご希望条件に合った物件が見つかります。
物件概要
| 物件名 | 小田急線「柿生」中古戸建 | ||
|---|---|---|---|
| 所在地 | 神奈川県川崎市麻生区下麻生3丁目 | ||
| 交通 | |||
| 価格 | 3,380万円~6,980万円 | 築年月(築年数) | 2007年 10月( 築18年 ) |
| 建物面積/坪数 | 78.45㎡~168.10㎡ 23.73坪~50.85坪 |
土地面積/坪数 | 75.26㎡~317.13㎡ 22.76坪~95.93坪 |
| 種別/構造 | 中古一戸建 / 木造 | 地目 | 宅地 |
| 備考 | こだわりポイント満載の小田急線「柿生」中古戸建。こちらの物件はローソン 川崎下麻生三丁目店まで225mにあります。ニーズの高い中古の戸建て物件は、経済的なメリットも大きいです。不動産を購入するなら、不動産情報を豊富に取り扱っている当社にご用命ください。お客様のご希望に合った物件のご紹介ができるよう、スタッフ一同全力で努めて参ります。 | ||
※地図上に表示される物件の位置は付近住所に所在することを表すものであり、実際の物件所在地とは異なる場合がございます。
LIFE HOME 個別相談会(無料)
今は買い時?売り時?
新築と中古どっちがいいの?

