部屋別の参考相場価格
| 号室 | 参考相場価格 | 妥当な価格 | 新築時価格 | 専有面積 |
|---|---|---|---|---|
| 1号棟 | - | - | - |
※表示価格は弊社独自の参考相場価格であり、実際の価格とは異なります。
※この参考相場価格は、販売物件情報ではありません。
会員登録物件
周辺にある相場が近い物件
もっと見る
川崎市幸区の人気物件
もっと見る
販売中の物件
もっと見る
PR近隣の販売中物件
物件概要
東急東横線「日吉」新築戸建て:東急東横線日吉駅にも近くて便利。新築戸建ての物件は、室内のレイアウトも自分好みに変更可能です。こだわり条件の一つ東南側道路に面している物件になってます。ご希望に沿った一戸建てをご紹介致します。川崎市幸区の東急東横線日吉付近でマイホームの購入をお考えなら、お気軽にお問い合わせください。
物件概要
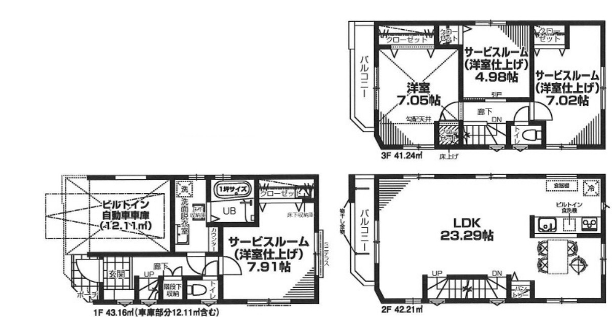
| 物件名 | 東急東横線「日吉」新築戸建て | ||
|---|---|---|---|
| 所在地 | 神奈川県川崎市幸区南加瀬5丁目 | ||
| 交通 | |||
| 価格 | 4,980万円 | 築年月(築年数) | 2025年 3月( 新築 ) |
| 建物面積/坪数 | 107.89㎡ 32.63坪 |
土地面積/坪数 | 62.94㎡ 19.03坪 |
| 種別/構造 | 新築一戸建 / 木造 | 地目 | 宅地 |
| 備考 | 東南側道路に面する物件は環境が理想的です。多くの方から高いニーズのある、内装もピカピカの新築戸建ての物件です。不動産の購入は、人生の中でも大きなお買い物です。当社スタッフが不動産購入をしっかりサポート致しますので、どうぞ安心してお任せ下さい。 | ||
※地図上に表示される物件の位置は付近住所に所在することを表すものであり、実際の物件所在地とは異なる場合がございます。
LIFE HOME 個別相談会(無料)
今は買い時?売り時?
新築と中古どっちがいいの?

