部屋別の参考相場価格
| 号室 | 参考相場価格 | 妥当な価格 | 新築時価格 | 専有面積 |
|---|---|---|---|---|
| B棟 | - | - | - | |
| 3号棟 | - | - | - | |
| 1号棟 | - | - | - | |
| 1号棟 | - | - | - |
※表示価格は弊社独自の参考相場価格であり、実際の価格とは異なります。
※この参考相場価格は、販売物件情報ではありません。
会員登録物件
周辺にある相場が近い物件
もっと見る
川崎市幸区の人気物件
もっと見る
販売中の物件
もっと見る
PR近隣の販売中物件
物件概要
駅まで徒歩13分と少し距離があります。築2年以内の築浅物件です。新築の戸建て物件です。不動産について何かお困りのことなどがございましたら、南武線鹿島田周辺の地域に強い当社スタッフまでお問い合わせください。
物件概要
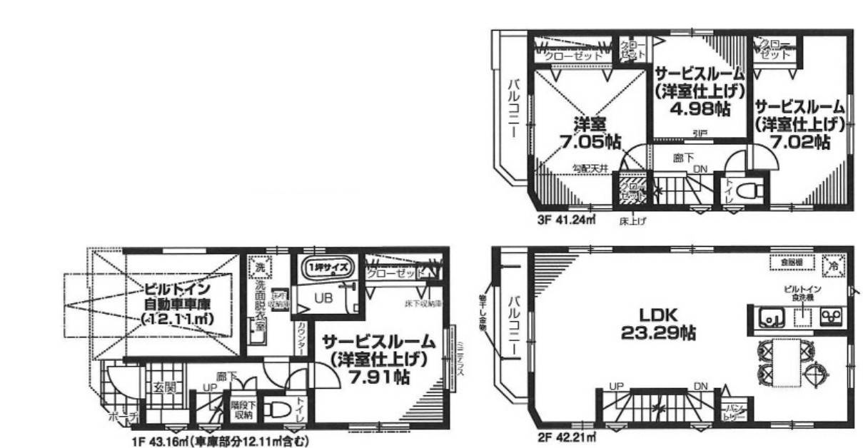
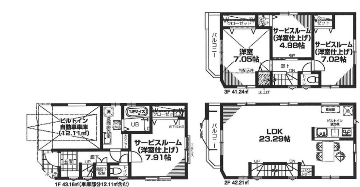
| 物件名 | JR南武線「鹿島田」新築戸建て | ||
|---|---|---|---|
| 所在地 | 神奈川県川崎市幸区古市場2丁目 | ||
| 交通 | |||
| 価格 | 4,480万円~6,390万円 | 築年月(築年数) | 2023年 5月( 新築 ) |
| 建物面積/坪数 | 97.02㎡~117.47㎡ 29.34坪~35.53坪 |
土地面積/坪数 | 51.15㎡~67.34㎡ 15.47坪~20.37坪 |
| 種別/構造 | 新築一戸建 / 木造 | 地目 | 宅地 |
| 備考 | 「JR南武線「鹿島田」新築戸建て」のここがイチオシ。築2年以内の築浅物件です。多くの方からこだわり条件でいただく新築戸建ての物件です。駅から少し離れた、駅徒歩13分の物件です。不動産購入で失敗しないように、豊富な経験と知識を持つ当社がしっかりとサポートを行います。ご希望の条件がございましたら、当社スタッフにお聞かせください。 | ||
※地図上に表示される物件の位置は付近住所に所在することを表すものであり、実際の物件所在地とは異なる場合がございます。
LIFE HOME 個別相談会(無料)
今は買い時?売り時?
新築と中古どっちがいいの?

